12334 56 AVENUE, Surrey BC V3X 2X2, Surrey , V3X 2X2
Listing ID: R3061629
Share
$1,459,900
Price
3
Bed
3
Bath
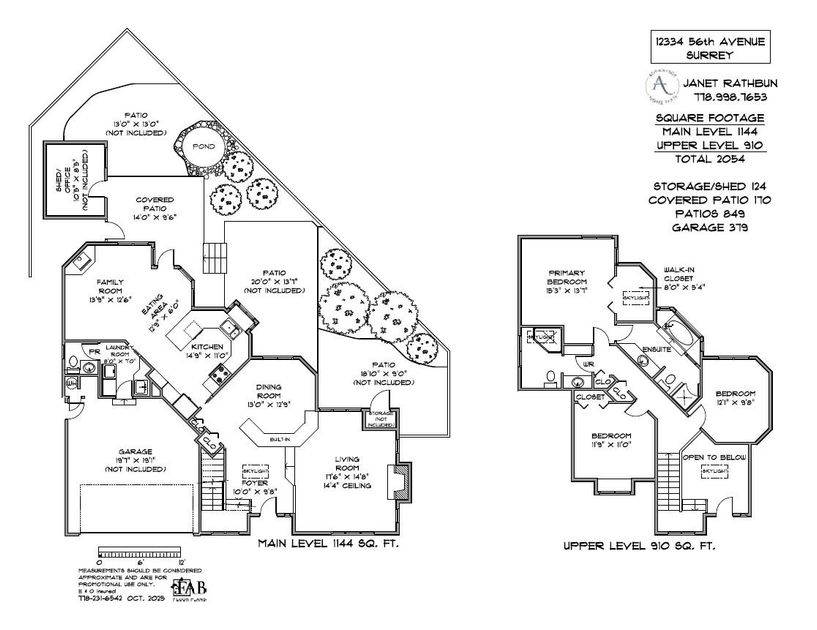
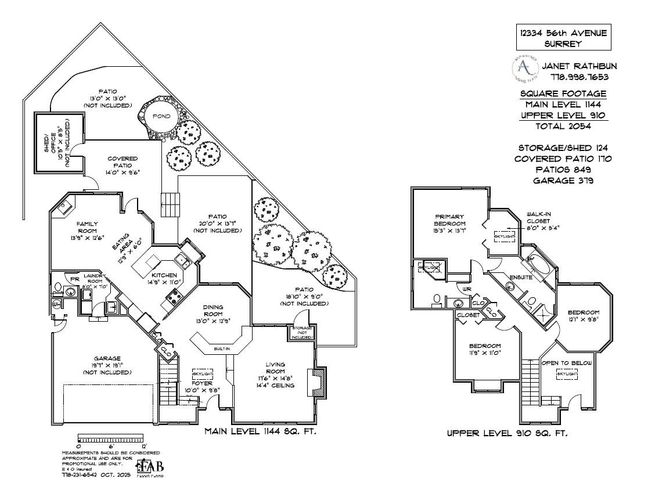
2,054
Sq. Ft.
Built: 1989
Parking: 2 Spot
Data last updated: October 25, 2025 at 10:42pm
Quick Access
Photos
Video
360 Tour

Property Description

Tucked away on a quiet cul-de-sac in prestigious Panorama Ridge, this charming 3 bdrm, 2.5 bthrm home is surrounded by multi-million-dollar estates—offering executive living without the price tag. The grand brick façade gives timeless curb appeal while inside offers approx 2,000 SF of well-planned space. Updates include roof (2018, 25-yr shingles), Low-E windows (2007), renovated main bath (2023) & ensuite w/ heated floors. The original ESWA electric heating system was state-of-the-art for its time, complemented by 2 gas fireplaces. Enjoy the private b/y w/ artificial turf, pond, water feature & irrigation plus an insulated, wired room off the patio—ideal office, studio or hobby space.

House located at 12334 56 AVENUE, Surrey BC V3X 2X2. It has 3 beds, 3 bathrooms, and is 2054 square feet. The property was built in 1989. 12334 56 AVENUE, Surrey BC V3X 2X2 is in the Surrey neighborhood.
Show More keyboard_arrow_down


Agent Contact: Janet Rathbun - PREC Phone: +16048254152
Listing Courtesy of: RE/MAX Performance Realty
Source: rebgv , MLS#: R3061629

close
JR
Janet Rathbun - PREC
(604) 825-4152

Here to help with your Real Estate inquiries

JR
Janet Rathbun - PREC
(604) 825-4152
chat
Message
By sharing this listing, you have agreed with roomvu's terms and conditions of usage
$3,703.37
Monthly
$878,400
Total Mortgage
$219,600
Down Payment