+17788828601
realtor phone number +1 (778) 882-8601
agent realty Team 3000 Realty Ltd.

realty logo
15168 ROPER White Rock, British Columbia V4B2E7, White Rock , V4B2E7
Listing ID: C8077366
Share
$2,599,999
Price
Data last updated: March 27, 2026 at 05:52pm
Quick Access
Photos
Video
Map

Property Description

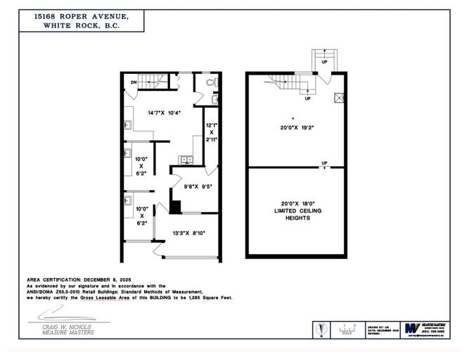
Prime free-standing commercial building in the heart of White Rock, offering exceptional owner-user and redevelopment potential. Situated on a 9,041 SF lot with CR-2 zoning, this property allows for a wide range of commercial uses and future mixed-use redevelopment (3-4 storeys). The existing 1,285 SF building is well-maintained and ideal for professional, medical, or service-based businesses seeking a standalone presence with strong accessibility. The site benefits from dual road frontage, providing excellent exposure, convenient access, and enhanced redevelopment flexibility. Located in a rapidly evolving area of White Rock, this property is positioned within close proximity to key amenities, residential density, and ongoing development-making it a strategic long-term investment opportunity. (id:26452)

Other located at 15168 ROPER White Rock, British Columbia V4B2E7. 15168 ROPER White Rock, British Columbia V4B2E7 is in the White Rock neighborhood. White Rock, Crescent Bch Ocean Pk., and Sunnyside Park Surrey are nearby neighbourhoods.
Show More keyboard_arrow_down


Agent Contact: Jeff Copland Phone: +17788394530
Listing Courtesy of: RE/MAX Elevate Realty
Source: crea , MLS#: C8077366

close
Naru Menon
+17788828601

Here to help with your Real Estate inquiries

Naru Menon
+17788828601
chat
Message
By sharing this listing, you have agreed with roomvu's terms and conditions of usage
$3,703.37
Monthly
$878,400
Total Mortgage
$219,600
Down Payment