Hybrid Unit #210, East Uniacke, Nova Scotia B0N1Z0, East Uniacke , B0N1Z0
Listing ID: 202529560
Share
$629,900
Price
3
Bed
2
Bath
1,574
Sq. Ft.
Data last updated: December 24, 2025 at 12:59am
Quick Access
Photos
Video

Property Description

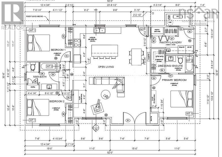
Luxury living in Cottage Country awaits! Located on a 1.3 acre lot in East Uniacke, this designer 3 bedroom, 2 bath home is currently under construction and just minutes from Long Lake's boat launch, dock, and scenic trails. Inside, you'll be greeted by an open concept living area featuring 9 ft ceilings throughout and designer lighting that elevates every room. The custom kitchen with a walk-in pantry and laundry room is open to the living room, complete with a cozy propane fireplace. The primary suite provides a private retreat with its own full ensuite bath, while two additional large bedrooms and a full bath are thoughtfully located on the opposite side of the home. The home is crafted with universal design principles and ensures comfort and accessibility for all. Step outside to your back deck overlooking peaceful nature. Enjoy modern conveniences including heat pumps and an electric vehicle charging station. The condo fee covers snow removal and garbage collection, offering low-maintenance living. You will love the optional 18x24 weather tight detached garage that can be added to the purchase. Adventure is right at your doorstep with swimming, fishing, and boating at Long Lake and exploring groomed hiking trails. This home truly has it all, offering quiet country living with the convenience of being less than 30 minutes from all amenities in HRM. (id:26452)

Other located at Hybrid Unit #210, East Uniacke, Nova Scotia B0N1Z0. It has 3 beds, 2 bathrooms, and is 1574 square feet. Hybrid Unit #210, East Uniacke, Nova Scotia B0N1Z0 is in the East Uniacke neighborhood. East Uniacke, and East Uniacke are nearby neighbourhoods.
Show More keyboard_arrow_down


Agent Contact: Johnathon Benedict Phone: +19027920141
Listing Courtesy of: Royal LePage Atlantic - Valley(Windsor)
Source: crea , MLS#: 202529560

close
JB
Johnathon Benedict
(902) 792-0141

Here to help with your Real Estate inquiries

JB
Johnathon Benedict
(902) 792-0141
chat
Message
By sharing this listing, you have agreed with roomvu's terms and conditions of usage
$3,703.37
Monthly
$878,400
Total Mortgage
$219,600
Down Payment